수원 광교 영어 수학 학원인테리어 교습소 공사 견적 비용
25평 수학학원 인테리어 업체
안녕하세요. 큐브디자인 입니다.
오늘은 수원 광교에 위치한 25평 영어 수학 학원인테리어 교습소 공사가 완료되었습니다.
저렴하면서 간단한 인테리어 공사를 문의주셔서 1주일내 깔끔하게 마무리 되었습니다.
수원 학원인테리어 공사완료 사진

입구 외부아트월 모습입니다.
시공이 빠르고 가격도 저렴하게 완성되었어요.

내부 수학 학원 교습소모습입니다.
총 4개 호실로 구성되었습니다.

입구에는 원장님이 간단하게 로고를 붙여주셨어요.


교실 내 내부모습
수원 광교 수학학원인테리어 공사 제안 비교사진


공사전 모습입니다.
형광등을 모두 제거하여 LED면조명 작업과 각종 스위치 콘서트를 매립하였습니다.
기존 벽체에는 곰팡이까지 올라오고 있어 약품처리하여 도배마감되었어요.


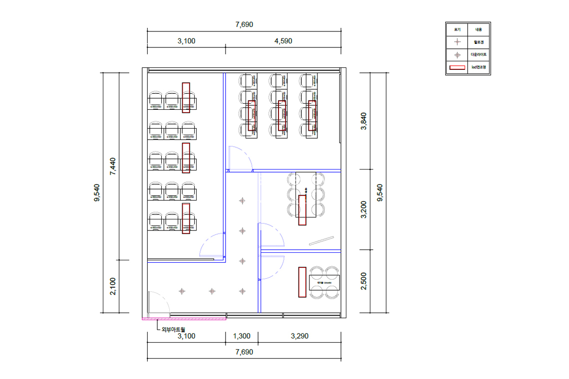
인테리어 공사의 기본적으로 도면과 단면도 및 3D이미지는 기본으로 제작해야합니다.
사항에 맞게 공사기간과 공정으로 비용이 산출되어 꼭 꼼꼼히 따져보셔야 합니다.



외부파사드 제안사진과 완료사진



지금까지 수원 광교에 위치한 25평 영어 수학 학원인테리어 공사 진행사진들을 확인하셨는데요.
학원 리모델링이나 신규 공사비용이 궁금하시면 아래 견적산출 프로그램으로 견적받아보셨으면 합니다.
http://www.cubedesign.co.kr/bbs/content.php?co_id=quote_01
사무실 평수 선택 | 큐브디자인
사무실 평수 선택 일상에 필요한 모든 것들을 연결해주는 새로운 연결, 더 나은 세상
www.cubedesign.co.kr
'지식산업센터인테리어' 카테고리의 다른 글
| 용인 40평 지식산업센터 사무실 인테리어 (0) | 2022.08.16 |
|---|---|
| 광교 우미뉴브 30평 사무실 칸막이 인테리어 공사 (1) | 2021.11.03 |
| 용인 기흥ICT 밸리 SKV1 사무실 인테리어 (0) | 2021.10.13 |
| 동탄 80평 사무실 리모델링 인테리어 (0) | 2021.10.13 |
| 광교 테라스힐 사무실 인테리어 (1) | 2021.10.13 |

댓글